108 VIVIENDAS VPO EN POLÍGONO AEROPUERTO DE SEVILLA

Proyecto de Eddea Arquitectura y Urbanismo

Cliente: Inmoavance Grupo Inmobiliario
Autores: Eddea Arquitectura y Urbanismo, S.L.P.
Responsable Proyecto: José María de Cárdenas
Responsable Arquitectura: Jose María de Cárdenas, Harald Schönegger e Ignacio Laguillo
Dirección de Obra: Harald Schönegger y Luis Ybarra
Director de Ejecución: Rafael Ortega
Localización: Polígono Aeropuerto (Sevilla).
Año: 2006-2010
Sup. (m²t): 13.897 m²
Fotografía: Jesús Granada

Ver en galería_

Cliente: Inmoavance Grupo Inmobiliario
Autores: Eddea Arquitectura y Urbanismo, S.L.P.
Responsable Proyecto: José María de Cárdenas
Responsable Arquitectura: Jose María de Cárdenas, Harald Schönegger e Ignacio Laguillo
Dirección de Obra: Harald Schönegger y Luis Ybarra
Director de Ejecución: Rafael Ortega
Localización: Polígono Aeropuerto (Sevilla).
Año: 2006-2010
Sup. (m²t): 13.897 m²
Fotografía: Jesús Granada

Ver en galería_

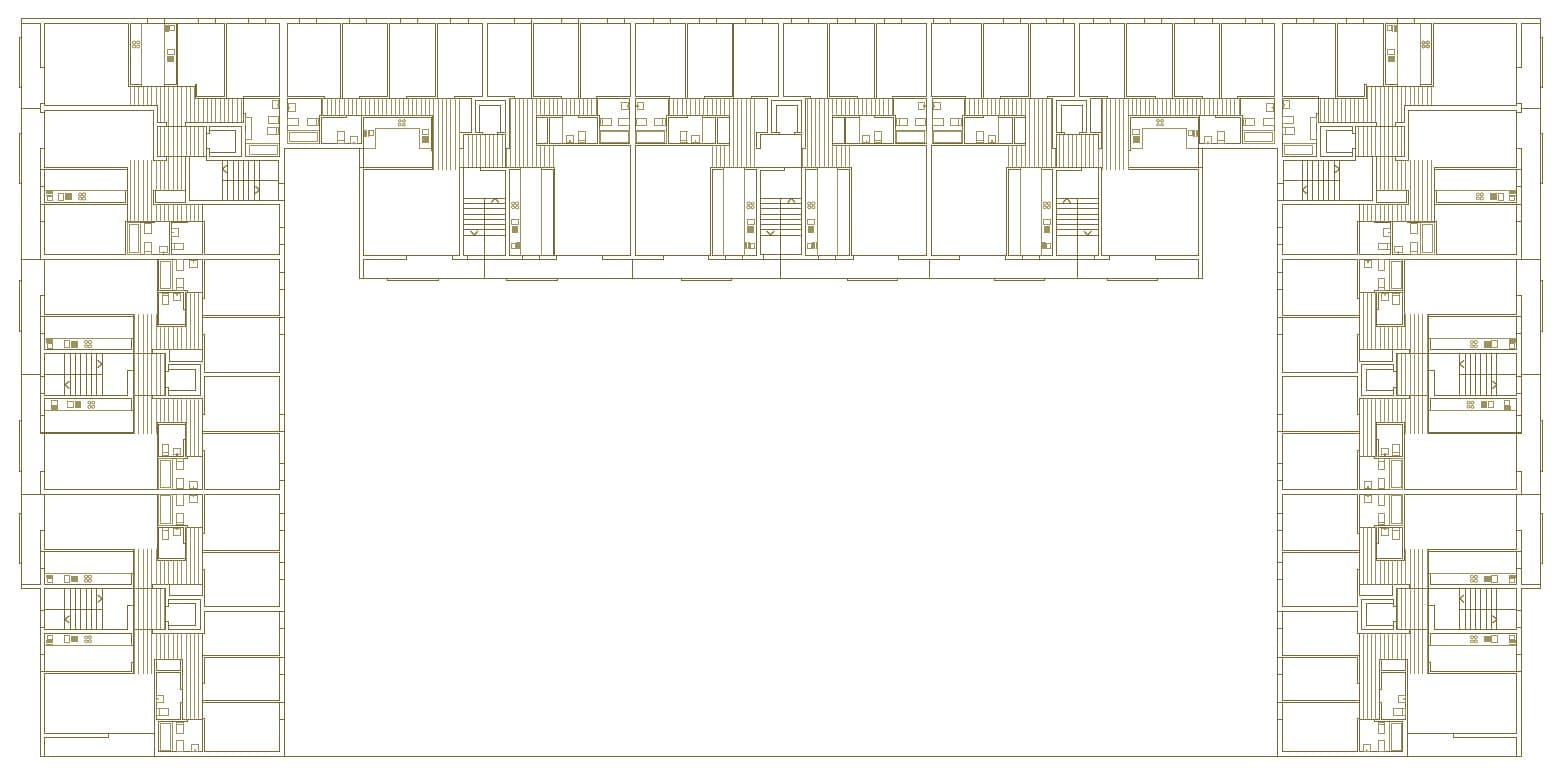
La propuesta arquitectónica surge en el Distrito Este de Sevilla, marcado por un crecimiento urbano significativo desde los años 50. Analizando el contexto, redefinimos la estrategia de implantación en los límites Oeste de la ordenación. La propuesta desafía la ocupación convencional, concentrando la edificabilidad en los bordes y esculpiendo un perfil distintivo. La disposición de viviendas prioriza la mejor orientación en estancias de día y busca alternancias de diferentes tipos de huecos en fachadas. La planta baja se libera de uso, generando un espacio a cubierto únicamente ocupado por los accesos a los portales, lo cual favorece una permeabilidad y transparencia desde los accesos exteriores.

La propuesta emplea tres materiales principales: revocos en blanco, cerrajerías y carpinterías de aluminios naturales y chapas galvanizadas, y albero local para la conformación de espacios exteriores, enfatizando así la naturalidad en la ordenación. La disposición de las viviendas garantiza doble orientación, con una crujía central para aseos e instalaciones que segrega de manera clara las circulaciones de la zona de noche y de día. El expacio exterior se ordena mediante dos rampas de acceso a los aparcamientos de la planta sótano junto con elementos sobre rasante que encapsulan las salidas peatonales del sótano, favorecen su ventilación o permiten el arbolado.